Eladó újszerű téglalakás - Budapest, II. kerület

garázzsal
Garázzsal
KAPCSOLAT
Németh Zoltán László


+36 70 500

info@

Az időpont kérés naptár ikonja
IDŐPONTOT KÉREK
A visszahívás kérés telefon ikonja egy azt körbe ölelő nyíllal
VISSZAHÍVÁST KÉREK
Ajánlom egy ismerősömnek ikon
AJÁNLOM EGY ISMERŐSÖMNEK
Facebook megosztás ikon
MEGOSZTÁS

KAPCSOLATFELVÉTEL

Küldés

Az üzenetet sikeresen elküldtük!
Hiba történt!
INGATLAN ADATAI

Ingatlan jellege

téglalakás

Belső terület

120 m²

Tájolás

dél, nyugat, délkelet

Építési állapot

újszerű

Építési mód

tégla

Szobák száma

3 szoba

Szobák elhelyezkedése

külön nyílik min. 2 szoba

Kert

350 m² (saját kert)

Terasz

40 m²

Emelet

földszint.

Épület szintje

2.

Épült

2024

Akadálymentes

igen

Lift

nincs

Ingatlan állapot

kívül: újszerű
belül: újszerű

Klíma

van

Szigetelés

15 cm

Ablak szerkezete

3 rétegű thermoplan

Fűtés

hőszivattyús

Komfort

duplakomfort

Parkolás

van önálló garázs

Kilátás

kertre, parkra

Energetika

nincs megadva

Az időpont kérés naptár ikonja
HTML
Az időpont kérés naptár ikonja
PDF
Eladó újszerű téglalakás
Belső azonosító:
00186_1
Ingatlan azonosító:
16212_bh

Budapest, II. kerület,

Irányár

235 M Ft
(1.96 M Ft/㎡)

Szobák

3 szoba

Emelet

földszint

Terület

120 m²
INGATLAN LEÍRÁSA
Magas színvonalon kialakított álomotthon elérhető áron páratlan környezetben!

INGATLAN HELYSZÍNE:
II. /A kerület Erzsébetliget részén található. Csendes, biztonságos, rendezett környezetben, kiválóan megközelíthető helyen. Számos nemzetközi iskola és intézmény található a környéken. Klebersberg Kultúrkúria, Budapesti Kisboldogasszony-templom, Waldorf óvoda, Pokorny József Sport- és Szabadidőközpont, Remetekertvárosi Általános Iskola, HÜVI 10 percre. 57-64 buszok 1 percre. Széll Kálmán tér 20-25 percen belül elérhető.

ÉPÜLET JELLEMZŐI:
2024-ben épület, 2 lakásos társasház. Kiváló állapotú mind esztétikailag, mind műszakilag. 15cm-es szigeteléssel lett ellátva. Teljes értékű, sík kerttel.

LAKÁS JELLEMZŐI:
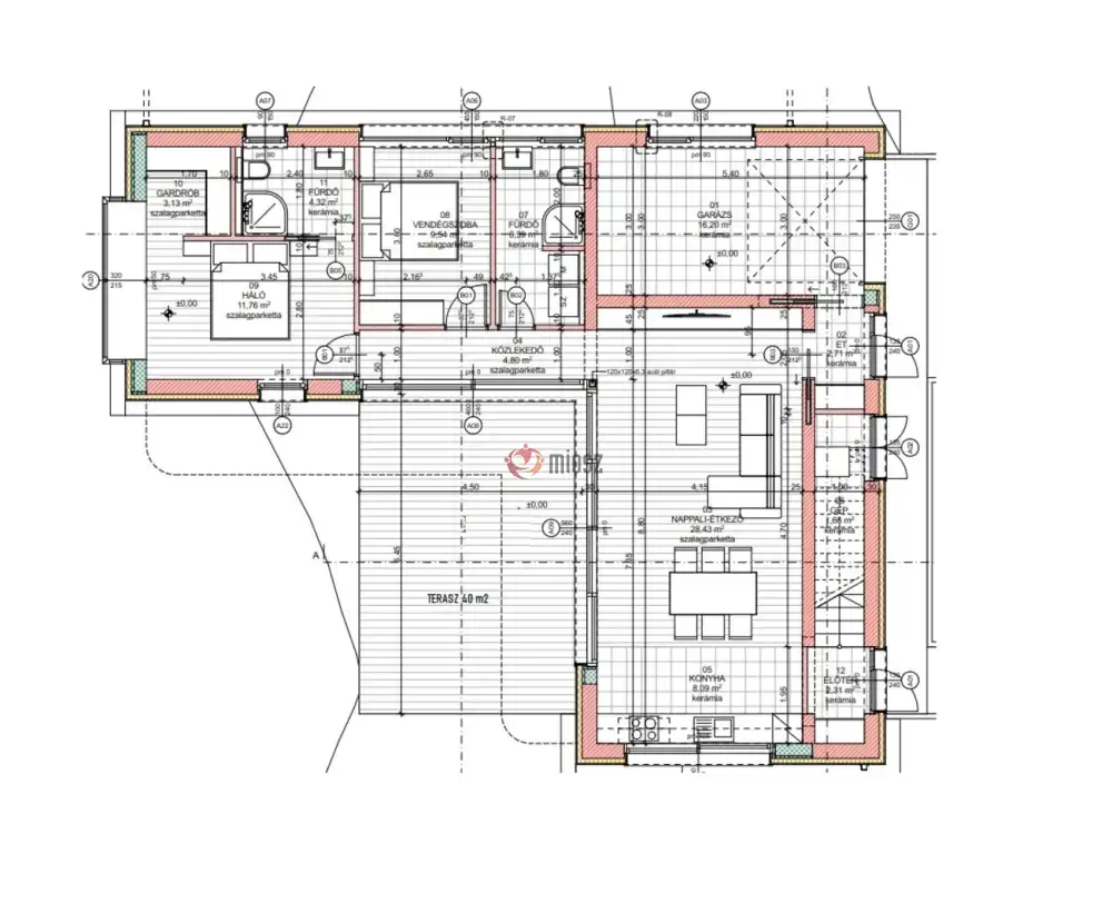
Egyszintes 120 m2-es, nappali + 2 szobás házrész. Amerikai konyhás tágas nappali, 2 teljesértékű hálószoba, egyiknél saját gardróbbal, 2 fürdőszoba toalettel ellátva. Terei kifejezetten tágasak, elrendezésük kiváló. Ideális időben körbe napozott, kifejezetten csendes, kiváló lehetőség családok részére.

Állapota mind műszakilag, mind esztétikailag kiváló.

A lakás előtt lévő 40 m2-es terasszal, 353 m2 alapító okiratban rögzített saját leválasztható kertrésszel, benne 5 m2-es kerti tárolóval.

MŰSZAKI FELSZERELTSÉG:
Energetikai tanúsítványa A++.

Az épület fűtése – hűtése levegő – hőszivattyú, padlón és mennyezeten keresztül, illetve beépítésre került hővisszanyerő szellőztettető rendszer is a házba.

HOFSTADTER ablakok, elektromos redőnyökkel és pliszírozott szúnyoghálóval felszereltek, napelem előkészítése szintén megvan, konyhabútor beépítésre került, kivéve a gépeket.

A fűtésrendszer, szellőztető rendszer és a közüzemi mérőórák is külön vannak, utcáról mindkét lakás külön bejárattal rendelkezik, külön kukatárolóval és villanyóra szekrénnyel, riasztóval, egyedül a gépészet helyisége, ami közös használatban van.

A lakásban Okosotthon rendszer működik, így az egész lakás megfigyelhető, illetve kezelhető a tulajdonos távollétekor is a telefonjáról.

KÖLTSÉGEK:
Műszaki felszereltségének és kialakításának köszönhetően havi költségei jelképesek.

PARKOLÁS:
Önálló garázs - benne van az árban, 1 autónak garázzsal, 1 autónak megfelelő gépkocsibeállási lehetőséggel

IRÁNYÁR:
235 MFt


INGATLAN ADATAI

Ingatlan jellege
téglalakás
Belső terület
120 m²
Tájolás
dél, nyugat, délkelet
Építési állapot
újszerű
Építési mód
tégla
Szobák száma
3 szoba
Szobák elhelyezkedése
külön nyílik min. 2 szoba
Kert
350 m² (saját kert)
Terasz
40 m²
Emelet
földszint.
Épület szintje
2.
Épült
2024
Akadálymentes
igen
Lift
nincs
Ingatlan állapot
kívül: újszerű
belül: újszerű
Klíma
van
Szigetelés
15 cm
Ablak szerkezete
3 rétegű thermoplan
Fűtés
hőszivattyús
Komfort
duplakomfort
Parkolás
van önálló garázs
Kilátás
kertre, parkra
Energetika
nincs megadva
TÉRKÉP

Budapest, II. kerület,

Hitelkalkulátor


KAPCSOLAT
Németh Zoltán László
Németh Zoltán László


+36 70 500 4467

info@budahouse.hu

KAPCSOLAT
Németh Zoltán László

+36 70 500

info@

Az időpont kérés naptár ikonja
IDŐPONTOT KÉREK
A visszahívás kérés telefon ikonja egy azt körbe ölelő nyíllal
VISSZAHÍVÁST KÉREK
Ajánlom egy ismerősömnek ikon
AJÁNLOM EGY ISMERŐSÖMNEK
Facebook megosztás ikon
MEGOSZTÁS

KAPCSOLATFELVÉTEL

Küldés

Az üzenetet sikeresen elküldtük!
Hiba történt!
INGATLAN ADATAI

Ingatlan jellege

téglalakás

Belső terület

120 m²

Tájolás

dél, nyugat, délkelet

Építési állapot

újszerű

Építési mód

tégla

Szobák száma

3 szoba

Szobák elhelyezkedése

külön nyílik min. 2 szoba

Kert

350 m² (saját kert)

Terasz

40 m²

Emelet

földszint.

Épület szintje

2.

Épült

2024

Lift

nincs

Ingatlan állapot

kívül: újszerű
belül: újszerű

Klíma

van

Szigetelés

15 cm

Ablak szerkezete

3 rétegű thermoplan

Fűtés

hőszivattyús

Komfort

duplakomfort

Parkolás

van önálló garázs

Kilátás

kertre, parkra

Energetika

nincs megadva

Az időpont kérés naptár ikonja
HTML
Az időpont kérés naptár ikonja
PDF

Hasonló ingatlan hírdetések

Eladó újszerű tégla-, vagy panellakás hirdetést keres Budapesten a II. kerületben?
Tekintse meg további ajánlatainkat!

eladó téglalakás, Budapest, II. kerület

eladó téglalakás

Budapest, II. kerület, Rózsadomb
RITKASÁG AZ INGATLANPIACON – 2017-ben épült, újszerű állapotú, 163 nm nettó alapterületű, nappali + 4 szobás, exkluzív kertkapcsolatos lakás, hatalmas terasszal, dupla garázzsal és tárolóval eladó! ...
Belső terület
163 m²
Szobák
5
Emelet
földszint

585 M Ft

eladó téglalakás, Budapest, II. kerület

eladó téglalakás

Budapest, II. kerület, Szemlőhegy
Exkluzív szemlőhegyi, belső kétszintes luxuslakás! Szemlőhegyen 2 lakásos modernizált Bauhaus társasházban, nagy telken, frissen és igényesen felújított, tejleskörűen modernizált épületben eladó 19...
Belső terület
190 m²
Szobák
4
Emelet
földszint

380 M Ft + Áfa

eladó téglalakás, Budapest, II. kerület

eladó téglalakás

Budapest, II. kerület, Országút
...IGAZI RITKASÁG...MILLENÁRIS PARKRA PANORÁMÁS....NAGY TERASZ... REMEK HELYEN... CSENDES, ZÖLD KÖRNYEZET ,MÉGIS KIVÁLÓ INFRASTRUKTÚRA... ... ÚJSZERŰ ÉPÍTÉSŰ LAKÁS.... TEREMGARÁZSBEÁLLÓ... TÁROL...
Belső terület
47 m²
Szobák
1+1

125 M Ft

eladó új építésű téglalakás, Budapest, II. kerület

eladó új építésű téglalakás

Budapest, II. kerület, Törökvész
Prémium Élet Budán – 2027-es Átadású Luxuslakások idei áron! Képzeld el, hogy Budapest egyik legmenőbb kerületében, egy vadiúj, 8 lakásos társasház egyik exkluzív otthonában kortyolgatod a reggeli ...
Belső terület
101 m²
Szobák
3+1
Emelet
földszint

375 M Ft

eladó téglalakás, Budapest, II. kerület

eladó téglalakás

Budapest, II. kerület,
Magas színvonalon kialakított álomotthon elérhető áron páratlan környezetben! INGATLAN HELYSZÍNE: II. /A kerület Erzsébetliget részén található. Csendes, biztonságos, rendezett környezetben, kivál...
Belső terület
135 m²
Szobák
3+1

245 M Ft

alkalmi vétel
Alkalmi vétel
eladó téglalakás, Budapest, II. kerület

eladó téglalakás

Budapest, II. kerület, Rózsadomb
Budapest szívében eladó egy csendes luxuslakás dupla terasszal, dupla panorámával (Gül Baba Türbéje, Vár), teremgarázs hellyel, nagy tárolóval, igény szerint bútorozva. A Margit híd budai hídfőjénél...
Belső terület
66 m²
Szobák
2
Emelet
5

180 M Ft

kiemelt
Kiemelt
Budapest, II. kerület - Erzsébetliget
Budapest, II. kerület - Erzsébetliget
Budapest, II. kerület - Erzsébetliget
Budapest, II. kerület - Erzsébetliget
Budapest, II. kerület - Erzsébetliget
Budapest, II. kerület - Erzsébetliget
Budapest, II. kerület - Erzsébetliget
Budapest, II. kerület - Erzsébetliget
Budapest, II. kerület - Erzsébetliget
Budapest, II. kerület - Erzsébetliget
Budapest, II. kerület - Erzsébetliget
Budapest, II. kerület - Erzsébetliget
Budapest, II. kerület - Erzsébetliget
Budapest, II. kerület - Erzsébetliget