Eladó újszerű téglalakás - Budapest, II. kerület

KAPCSOLAT
Benes Attila


+36 70 456

benes.attila@

Az időpont kérés naptár ikonja
IDŐPONTOT KÉREK
A visszahívás kérés telefon ikonja egy azt körbe ölelő nyíllal
VISSZAHÍVÁST KÉREK
Ajánlom egy ismerősömnek ikon
AJÁNLOM EGY ISMERŐSÖMNEK
Facebook megosztás ikon
MEGOSZTÁS

KAPCSOLATFELVÉTEL

Küldés

Az üzenetet sikeresen elküldtük!
Hiba történt!
INGATLAN ADATAI

Ingatlan jellege

téglalakás

Belső terület

129 m²

Tájolás

kelet

Építési állapot

újszerű

Építési mód

tégla

Szobák száma

4 szoba

Kert

(közös kerthasználat)

Erkély

20 m²

Emelet

2.

Épület szintje

3.

Épült

2001

Lift

nincs

Ingatlan állapot

kívül: újszerű
belül: újszerű

Klíma

van

Fűtés

cirko

Komfort

duplakomfort

Parkolás

van teremgarázs

Kilátás

parkra

Energetika

D:

Az időpont kérés naptár ikonja
HTML
Az időpont kérés naptár ikonja
PDF
Eladó újszerű téglalakás
Ingatlan azonosító:
4012_red

Budapest, II. kerület, Zöldmál

Irányár

260 M Ft
(2.02 M Ft/㎡)

Szobák

4 szoba

Emelet

2

Terület

129 m²
INGATLAN LEÍRÁSA
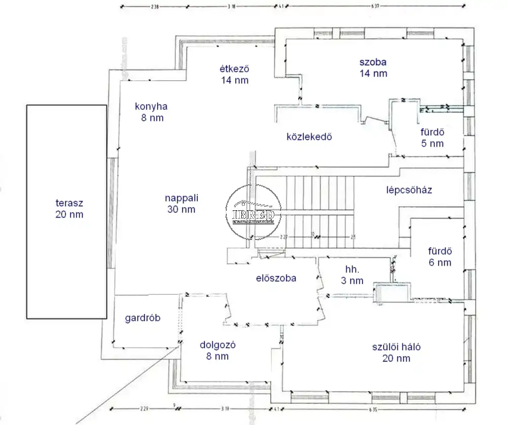
II. Szemlőhegy zöld mellékutcájában, kis létszámú, nyugodt hangulatú társasház, panorámás, nagy teraszos emeleti lakása eladó.

A ház két irányból közelíthető meg: a teremgarázs felől második szintként, míg az utcai bejáraton át első emeletként érkezünk.

A lakás tágas előterébe lépünk, ahonnan a nappali–étkező–konyha valódi központi élettérként nyílik meg. A nagy üvegfelületeknek köszönhetően a fény folyamatosan jelen van, napszaktól függően mindig más hangulatot adva. A közel 20 m²-es, jó arányú terasz nem csupán kiegészítő, hanem a lakás szerves része, tavasztól egy plusz helyiség.

A szülői háló saját fürdővel és gardróbszekrénnyel külön egységet alkot, jól elkülönülve a lakás többi részétől. A gyerekszoba kényelmes teret biztosít a tanuló- és pihenőrésznek, egymástól jól elkülönítve.
A belső kialakítás átgondolt, élhető és időtálló. Két kényelmes hálószoba mellett egy különálló szoba ad helyet dolgozónak vagy gardróbnak, a két fürdőszoba pedig egyszerre szolgálja a praktikumot és a komfortot.
A zuhanyzós fürdőszoba WC-vel és bidével felszerelt, ablakos, világos.
A tárolást tágas gardrób és háztartási helyiség, valamint a folyosón végigfutó, nagy beépített szekrény segíti. A lakás minden helyisége világos, napos.

Az ingatlan azonnal birtokba vehető, amelyhez két teremgarázs-hely és egy tároló tartozik, kötelező megvásárlással.

Főbb jellemzők:
•Szemlőhegyen mellékutca, prémium környezet
•139 m² számított alapterület, nappali + 3 háló, nagy terasz
•Panoráma nappaliból és a nagy teraszról is
•Nappali + étkező + konyha egybenyitva
•2 hálószoba + dolgozó
•2 fürdőszoba (kádas és zuhanyzós), WC és bidé
•20 m²-es panorámás terasz
•Nagy üvegfelületek, világos terek
•Elektromos redőnyök, klíma
•Egyedi gázkazános fűtés
•Azonnal költözhető
•Teremgarázs: 2 db + tároló, kötelezően megvásárolandó (összesen 25 M Ft)
•Rózsakert Bevásárlóközpont pár perc, közvetlen buszkapcsolat a M2 metróhoz
•Csendes társasház, kevés lakás
•Jól használható sík kert.

INGATLAN ADATAI

Ingatlan jellege
téglalakás
Belső terület
129 m²
Tájolás
kelet
Építési állapot
újszerű
Építési mód
tégla
Szobák száma
4 szoba
Kert
(közös kerthasználat)
Erkély
20 m²
Emelet
2.
Épület szintje
3.
Épült
2001
Lift
nincs
Ingatlan állapot
kívül: újszerű
belül: újszerű
Klíma
van
Fűtés
cirko
Komfort
duplakomfort
Parkolás
van teremgarázs
Kilátás
parkra
Energetika
D:
TÉRKÉP

Budapest, II. kerület, Zöldmál

Hitelkalkulátor


KAPCSOLAT
Benes Attila
Benes Attila


+36 70 456 1120

benes.attila@ibred.hu

KAPCSOLAT
Benes Attila

+36 70 456

benes.attila@

Az időpont kérés naptár ikonja
IDŐPONTOT KÉREK
A visszahívás kérés telefon ikonja egy azt körbe ölelő nyíllal
VISSZAHÍVÁST KÉREK
Ajánlom egy ismerősömnek ikon
AJÁNLOM EGY ISMERŐSÖMNEK
Facebook megosztás ikon
MEGOSZTÁS

KAPCSOLATFELVÉTEL

Küldés

Az üzenetet sikeresen elküldtük!
Hiba történt!
INGATLAN ADATAI

Ingatlan jellege

téglalakás

Belső terület

129 m²

Tájolás

kelet

Építési állapot

újszerű

Építési mód

tégla

Szobák száma

4 szoba

Kert

(közös kerthasználat)

Erkély

20 m²

Emelet

2.

Épület szintje

3.

Épült

2001

Lift

nincs

Ingatlan állapot

kívül: újszerű
belül: újszerű

Klíma

van

Fűtés

cirko

Komfort

duplakomfort

Parkolás

van teremgarázs

Kilátás

parkra

Energetika

D:

Az időpont kérés naptár ikonja
HTML
Az időpont kérés naptár ikonja
PDF

Hasonló ingatlan hírdetések

Eladó újszerű tégla-, vagy panellakás hirdetést keres Budapesten a II. kerületben?
Tekintse meg további ajánlatainkat!

eladó téglalakás, Budapest, II. kerület

eladó téglalakás

Budapest, II. kerület, Rózsadomb
Budapest II. kerület, Marczibányi tér közelében – azonnal beépíthető luxus fejlesztési projekt Kiemelkedő lehetőség fejlesztők és befektetők számára Budapest egyik legkeresettebb részén! A projekt ...
Belső terület
800 m²
Szobák
2

1300 M Ft

eladó téglalakás, Budapest, II. kerület

eladó téglalakás

Budapest, II. kerület, Rózsadomb
RITKASÁG AZ INGATLANPIACON – 2017-ben épült, újszerű állapotú, 163 nm nettó alapterületű, nappali + 4 szobás, exkluzív kertkapcsolatos lakás, hatalmas terasszal, dupla garázzsal és tárolóval eladó! ...
Belső terület
163 m²
Szobák
5
Emelet
földszint

585 M Ft

eladó téglalakás, Budapest, II. kerület

eladó téglalakás

Budapest, II. kerület, Szemlőhegy
Exkluzív szemlőhegyi, belső kétszintes luxuslakás! Szemlőhegyen 2 lakásos modernizált Bauhaus társasházban, nagy telken, frissen és igényesen felújított, tejleskörűen modernizált épületben eladó 19...
Belső terület
190 m²
Szobák
4
Emelet
földszint

380 M Ft + Áfa

eladó téglalakás, Budapest, II. kerület

eladó téglalakás

Budapest, II. kerület, Országút
...IGAZI RITKASÁG...MILLENÁRIS PARKRA PANORÁMÁS....NAGY TERASZ... REMEK HELYEN... CSENDES, ZÖLD KÖRNYEZET ,MÉGIS KIVÁLÓ INFRASTRUKTÚRA... ... ÚJSZERŰ ÉPÍTÉSŰ LAKÁS.... TEREMGARÁZSBEÁLLÓ... TÁROL...
Belső terület
47 m²
Szobák
1+1

125 M Ft

eladó új építésű téglalakás, Budapest, II. kerület

eladó új építésű téglalakás

Budapest, II. kerület, Törökvész
Prémium Élet Budán – 2027-es Átadású Luxuslakások idei áron! Képzeld el, hogy Budapest egyik legmenőbb kerületében, egy vadiúj, 8 lakásos társasház egyik exkluzív otthonában kortyolgatod a reggeli ...
Belső terület
101 m²
Szobák
3+1
Emelet
földszint

375 M Ft

eladó téglalakás, Budapest, II. kerület

eladó téglalakás

Budapest, II. kerület,
Magas színvonalon kialakított álomotthon elérhető áron páratlan környezetben! INGATLAN HELYSZÍNE: II. /A kerület Erzsébetliget részén található. Csendes, biztonságos, rendezett környezetben, kivál...
Belső terület
135 m²
Szobák
3+1

245 M Ft

alkalmi vétel
Alkalmi vétel
eladó téglalakás, Budapest, II. kerület

eladó téglalakás

Budapest, II. kerület,
Magas színvonalon kialakított álomotthon elérhető áron páratlan környezetben! INGATLAN HELYSZÍNE: II. /A kerület Erzsébetliget részén található. Csendes, biztonságos, rendezett környezetben, kivál...
Belső terület
120 m²
Szobák
3
Emelet
földszint

240 M Ft

garázzsal
Garázzsal
eladó téglalakás, Budapest, II. kerület

eladó téglalakás

Budapest, II. kerület, Rózsadomb
Budapest szívében eladó egy csendes luxuslakás dupla terasszal, dupla panorámával (Gül Baba Türbéje, Vár), teremgarázs hellyel, nagy tárolóval, igény szerint bútorozva. A Margit híd budai hídfőjénél...
Belső terület
66 m²
Szobák
2
Emelet
5

180 M Ft

kiemelt
Kiemelt
Budapest, II. kerület - Zöldmál
Budapest, II. kerület - Zöldmál
Budapest, II. kerület - Zöldmál
Budapest, II. kerület - Zöldmál
Budapest, II. kerület - Zöldmál
Budapest, II. kerület - Zöldmál
Budapest, II. kerület - Zöldmál
Budapest, II. kerület - Zöldmál
Budapest, II. kerület - Zöldmál
Budapest, II. kerület - Zöldmál
Budapest, II. kerület - Zöldmál
Budapest, II. kerület - Zöldmál
Budapest, II. kerület - Zöldmál
Budapest, II. kerület - Zöldmál
Budapest, II. kerület - Zöldmál
Budapest, II. kerület - Zöldmál
Budapest, II. kerület - Zöldmál
Budapest, II. kerület - Zöldmál
Budapest, II. kerület - Zöldmál
Budapest, II. kerület - Zöldmál
Budapest, II. kerület - Zöldmál
Budapest, II. kerület - Zöldmál