KAPCSOLATFELVÉTEL
Ingatlan jellege
ikerház
Belső terület
107 m²
Telek terület
257 m²
Tájolás
délkelet
Építési állapot
újszerű
Építési mód
tégla
Szobák száma
3+1 félszoba
Épület szintje
földszint + tetőteres.
Épült
2020
Ingatlan állapot
kívül: kitűnő
belül: kitűnő
Klíma
van
Szigetelés
15 cm
Ablak szerkezete
2 rétegű thermoplan
Fűtés
cirko
Komfort
összkomfort
Parkolás
van önálló garázs
Közműállapot
csatorna: bekötve
gáz: bekötve
villany: bekötve
víz: bekötve
Energetika
nincs megadva
Extrák
klíma, riasztó
Pest megye, Szigetszentmiklós, Bucka
Irányár
(896.26 E Ft/㎡)
Szobák
Terület
Telek terület
A napfény szinte beköltözött a kiváló tájolású, tágas és világos helyiségekbe.
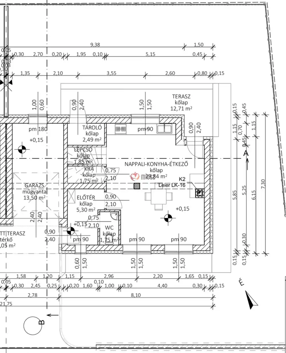
A lakótér 93 nm, melyhez tartozik egy 13,5 nm-es garázs és egy ház részét képező, de kert felől nyíló tároló, amely 2,5 nm. A ház előtt térkövezett autóbeállón akár 2 autó parkolhat, 1 pedig a garázsban. Az utcafronti falkerítés gondoskodik a privát szféráról. Az előkertben egy nagyobb méretű medence is elfér, míg az oldal- és a hátsókert füvesített, ideális a pihenésre és nem kell az egész hétvégét a gondozásával tölteni. A hátsó terasz, melyre a nappaliból közvetlenül is kiléphetünk, éppen elég helyet biztosít egy kis családi étkezéshez. A környék valóban csendes és a kerítésekre felszerelt belátásgátló hálóknak köszönhetően kellően privát szférát nyújt a kert. A teraszról nyílik egy külön kerti tároló, mely a ház részét képezi.
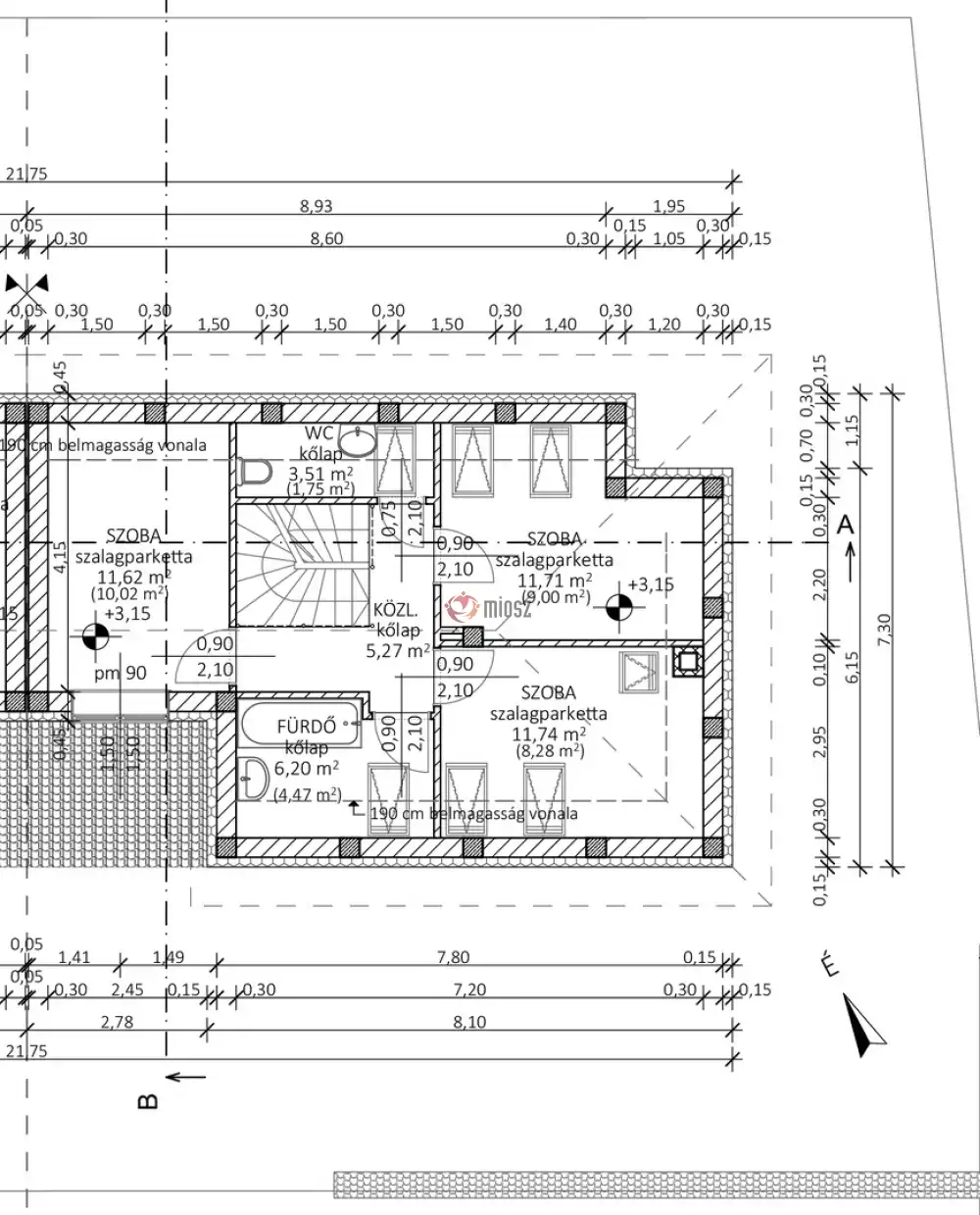
A két lakást légréssel készült dupla fal határolja, így kizárva az áthallást. Az ingatlan külső-belső állapota újszerű, kifogástalan. A főfalak 30-as Porotherm téglából készültek, 15 cm-es homlokzati hőszigeteléssel. A nyílászárók műanyag szerkezetűek, 2 rtg thermoplan üvegezéssel. A tető cserépfedést kapott, a garázs előtető pedig lemezfedést. Minden helyiség széles beltéri ajtókkal rendelkezik. Az emeletre vezető lépcső alatt kamrát alakítottak ki. A szép és újszerű konyhabútor a gépekkel együtt a vételár részét képezik.
A ház rezsije rendkívül alacsony, köszönhetően a jó szigetelésnek: még jacuzzival és folyamatos otthoni munkavégzéssel is mindössze 12.500 Ft az átalány villanyszámla. A fűtést és a melegvíz-ellátást kombi cirkó biztosítja. A tetőtéri közlekedőben található egy inverteres klíma, így a szobákba is beáramló hűvös levegő biztosítja a komfortos hőmérsékletet. A tetőtérben a szobák mellett egy kádas fürdőszoba és külön WC kapott helyet. A biztonságot riasztó garantálja. Az 514 nm-es telek fele tartozik az eladó házhoz, vagyis 257 nm.
A tömegközlekedés néhány perc sétával elérhető: a legközelebbi buszmegállók (Bucka ABC, Szedres utca) mindössze 500 és 650 méterre találhatók, tehát 6 perc sétával elérhetők. A legközelebbi HÉV-megálló (József Attila telep) 1.2 km-re van a háztól.
Autóval végig aszfaltozott úton közlekedhetünk.
Ideális otthont nyújt a ház mindazoknak, akik valóban nyugodt, csendes életteret keresnek, de közel szeretnének lenni a városközponthoz, vagy a fővároshoz. Alkalmas a ház a home office munkavégzésre is, mert mindenkinek jut privát szféra. A földszinten a konyha-étkező-nappali együttese kiváló közösségi térként is használható, egy ünnepi vendéglátáshoz is megfelelő teret nyújt. Itt a szomszédok ismerik egymást, csak az jár erre, aki itt lakik.
Irányár: 95.900.000 Ft.
Hitelre van szüksége a vásárláshoz? Húsz év tapasztalatával rendelkező független hitelügyintéző kollégám (Bankmonitor partner) segít megtalálni a legjobb lakásvásárlási hitelt és az otthonteremtési kedvezményeket. Kényelmesen, online, ingyenesen, az Ön idejéhez igazodva.
belül: kitűnő
gáz: bekötve
villany: bekötve
víz: bekötve
Pest megye, Szigetszentmiklós, Bucka
Hitelkalkulátor

+36 20 422 2043
iroda@szigetingatlan.hu
KAPCSOLATFELVÉTEL
Ingatlan jellege
ikerház
Belső terület
107 m²
Telek terület
257 m²
Tájolás
délkelet
Építési állapot
újszerű
Építési mód
tégla
Szobák száma
3+1 félszoba
Épület szintje
földszint + tetőteres.
Épült
2020
Ingatlan állapot
kívül: kitűnő
belül: kitűnő
Klíma
van
Szigetelés
15 cm
Ablak szerkezete
2 rétegű thermoplan
Fűtés
cirko
Komfort
összkomfort
Parkolás
van önálló garázs
Közműállapot
csatorna: bekötve
gáz: bekötve
villany: bekötve
víz: bekötve
Energetika
nincs megadva
Extrák
klíma, riasztó