Eladó új építésű ikerház - Gödöllő

Új építésű!
Új építésű
KAPCSOLAT
Kiss Jutka


+36 20 334

arenaingatlanok@

Az időpont kérés naptár ikonja
IDŐPONTOT KÉREK
A visszahívás kérés telefon ikonja egy azt körbe ölelő nyíllal
VISSZAHÍVÁST KÉREK
Ajánlom egy ismerősömnek ikon
AJÁNLOM EGY ISMERŐSÖMNEK
Facebook megosztás ikon
MEGOSZTÁS

KAPCSOLATFELVÉTEL

Küldés

Az üzenetet sikeresen elküldtük!
Hiba történt!
INGATLAN ADATAI

Ingatlan jellege

ikerház

Belső terület

150 m²

Telek terület

500 m²

Tájolás

délnyugat

Építési állapot

új

Építési mód

tégla

Szobák száma

4 szoba

Terasz

10 m²

Épület szintje

1.

Épült

2026

Ingatlan állapot

kívül: új
belül: új

Klíma

előkészítve

Szigetelés

15 cm

Ablak szerkezete

3 rétegű thermoplan

Fűtés

hőszivattyús

Komfort

duplakomfort

Parkolás

van önálló garázs

Közműállapot

csatorna: bekötve
gáz: nincs
villany: bekötve
víz: bekötve

Energetika

nincs megadva

Az időpont kérés naptár ikonja
HTML
Az időpont kérés naptár ikonja
PDF
Eladó új építésű ikerház
Ingatlan azonosító:
1363_ar

Pest megye, Gödöllő

Irányár

134.9 M Ft
(899.33 E Ft/㎡)

Szobák

4 szoba

Terület

150 m²

Telek terület

500 m²
INGATLAN LEÍRÁSA
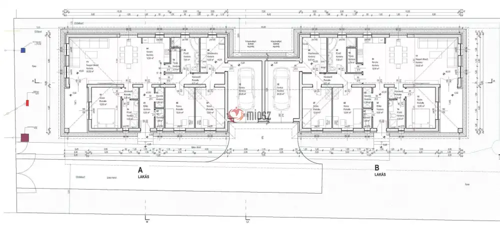
Eladó Gödöllő keresett részén, a gödöllői kastély közelében, csendes, rendezett utcában, ÚJ ÉPÍTÉSŰ ikerház.

A két ház CSAK A GARÁZSOKNÁL ÉRINTKEZIK, NINCS KÖZÖS FAL!

BERUHÁZÓI ÁRON!

Folyamatban lévő építkezés, nyári átadás!

Ez a lakásonként 150 m²-es, földszintes tégla ikerház kiváló választás azok számára, akik stílusos, energiatakarékos otthonra vágynak. A tágas amerikai konyhás nappali (48 m²), három külön nyíló hálószoba, kamra, gardrób, két fürdőszoba, háztartási helyiség, vendég WC, 10 m²-es terasz és 21 m²-es garázs minden család igényét kielégíti.

Főbb műszaki paraméterek:
-30-as Porotherm X-Therm tégla falazat, 15 cm-es grafitos szigeteléssel,
-beton födém, beton cserépfedés,
-3 rétegű, hőszigetelt üvegezésű nyílászárók,
-hőszivattyús fűtés, padlófűtéssel, fürdőszobákban törölköző szárítóval kiegészítve,
-választható burkolatok, szaniterek, belső ajtók.

Az első „A” lakáshoz tartozó telek 500 nm, ára: 134.9MFt,
a hátsó „B” lakáshoz 1300 telek tartozik, ennek ára: 137.9MFt.

Számos referenciával rendelkező, megbízható kivitelező!

Kérje a részletes műszaki tartalmat, és fedezze fel a vágyott családi otthont Gödöllőn.

Irodánk ÚJ ÉPÍTÉSŰ ingatlanok specialistája, felkészült értékesítőkkel!
Jogi háttérrel (kedvező díjazással) és az egyik legjobb, bank semleges HITELKÖZVETÍTŐVEL segítjük vásárlását.
Hitelszakértőnk teljes körű ügyintézéssel áll Vevőink rendelkezésére, legyen szó OTTHON START, CSOK+, BABAVÁRÓ vagy a legjobb piaci hitelről.
Új építésű ingatlanjainkat BERUHÁZÓI ÁRON értékesítjük!

Amennyiben értékesíteni kívánja ingatlanát, irodánk egyedi, kedvező ajánlattal áll rendelkezésére!


INGATLAN ADATAI

Ingatlan jellege
ikerház
Belső terület
150 m²
Telek terület
500 m²
Tájolás
délnyugat
Építési állapot
új
Építési mód
tégla
Szobák száma
4 szoba
Terasz
10 m²
Épület szintje
1.
Épült
2026
Ingatlan állapot
kívül: új
belül: új
Klíma
előkészítve
Szigetelés
15 cm
Ablak szerkezete
3 rétegű thermoplan
Fűtés
hőszivattyús
Komfort
duplakomfort
Parkolás
van önálló garázs
Közműállapot
csatorna: bekötve
gáz: nincs
villany: bekötve
víz: bekötve
Energetika
nincs megadva
TÉRKÉP

Pest megye, Gödöllő

Hitelkalkulátor


KAPCSOLAT
Kiss Jutka
Kiss Jutka


+36 20 334 3328

arenaingatlanok@gmail.com

KAPCSOLAT
Kiss Jutka

+36 20 334

arenaingatlanok@

Az időpont kérés naptár ikonja
IDŐPONTOT KÉREK
A visszahívás kérés telefon ikonja egy azt körbe ölelő nyíllal
VISSZAHÍVÁST KÉREK
Ajánlom egy ismerősömnek ikon
AJÁNLOM EGY ISMERŐSÖMNEK
Facebook megosztás ikon
MEGOSZTÁS

KAPCSOLATFELVÉTEL

Küldés

Az üzenetet sikeresen elküldtük!
Hiba történt!
INGATLAN ADATAI

Ingatlan jellege

ikerház

Belső terület

150 m²

Telek terület

500 m²

Tájolás

délnyugat

Építési állapot

új

Építési mód

tégla

Szobák száma

4 szoba

Terasz

10 m²

Épület szintje

1.

Épült

2026

Ingatlan állapot

kívül: új
belül: új

Klíma

előkészítve

Szigetelés

15 cm

Ablak szerkezete

3 rétegű thermoplan

Fűtés

hőszivattyús

Komfort

duplakomfort

Parkolás

van önálló garázs

Közműállapot

csatorna: bekötve
gáz: nincs
villany: bekötve
víz: bekötve

Energetika

nincs megadva

Az időpont kérés naptár ikonja
HTML
Az időpont kérés naptár ikonja
PDF

Hasonló ingatlan hírdetések

Eladó új építésű családi ház, vagy kertes ház hirdetést keres Gödöllő területén?
Tekintse meg további ajánlatainkat!

eladó új építésű ikerház, Gödöllő

eladó új építésű ikerház

Pest megye, Gödöllő, Fecske utca
Budapesttől mindössze 20 percre Gödöllőn, Blaha városrészen eladásra kínálok egy 732 nm-es sarok telekre tervezett ikerházat. Az ingatlanokat teljesen elszeparálják egymástól, így garantált az inti...
Belső terület
95 m²
Telek terület
389 m²
Szobák
4

115 M Ft

eladó családi ház, Gödöllő

eladó családi ház

Pest megye, Gödöllő, Kertváros
Gödöllő csendes, de központhoz közeli utcájában eladó egy 138 m2-es családi ház. Ebbe az alaprajzba minden belefér amit csak szeretnél! A ház falai és a tető áll, de a falakat a kedved szerint ...
Belső terület
138 m²
Telek terület
330 m²
Szobák
4

105 M Ft

kiemelt
Kiemelt
eladó új építésű ikerház, Gödöllő

eladó új építésű ikerház

Pest megye, Gödöllő
Gödöllőn a központhoz közel eladásra kínálok egy 104 nm-es ÚJ ÉPÍTÉSŰ IKERHÁZAT. Az ingatlanban 3 tágas hálószoba, amerikai konyhás nappali, 1 fürdőszoba, külön mellékhelyiség is helyet kapott. ...
Belső terület
104 m²
Telek terület
200 m²
Szobák
4

115 M Ft

eladó új építésű ikerház, Gödöllő

eladó új építésű ikerház

Pest megye, Gödöllő, Belváros
Gödöllőn a Belvároshoz közel eladásra kínálok egy 135 nm-es ÚJ ÉPÍTÉSŰ IKERHÁZAT. Az ingatlanban 4 tágas hálószoba, amerikai konyhás nappali, 2 fürdőszoba, gardrób, külön mellékhelyiség is helyet k...
Belső terület
135 m²
Telek terület
350 m²
Szobák
5

129.9 M Ft

eladó családi ház, Gödöllő

eladó családi ház

Pest megye, Gödöllő, Fenyves
Eladó Gödöllő Fenyves városrészén, a Fenyvesi Nagyúton egy 472 m2-es (425 m2 belső rész + az összesen 95 m2-nyi terasz és erkély fele), nappali + 6 szobás, ÚJSZERŰ CSALÁDI VILLA, egy 2.472 m2-es gyöny...
Belső terület
472 m²
Telek terület
2472 m²
Szobák
7

490 M Ft

Pest megye - Gödöllő
Pest megye - Gödöllő
Pest megye - Gödöllő
Pest megye - Gödöllő