KAPCSOLATFELVÉTEL
Ingatlan jellege
családi ház
Belső terület
118 m²
Telek terület
504 m²
Tájolás
dél
Építési állapot
új
Építési mód
tégla
Szobák száma
5 szoba
Terasz
15 m²
Épület szintje
földszintes.
Épült
2025
Ingatlan állapot
kívül: kitűnő
belül: kitűnő
Klíma
előkészítve
Szigetelés
15 cm
Ablak szerkezete
3 rétegű thermoplan
Fűtés
cirko
Komfort
duplakomfort
Parkolás
van önálló garázs
Közműállapot
csatorna: bekötve
gáz: bekötve
villany: bekötve
víz: bekötve
Energetika
A+ 2024:
Pest megye, Veresegyház, Ligetek
Irányár
(1.27 M Ft/㎡)
Szobák
Terület
Telek terület
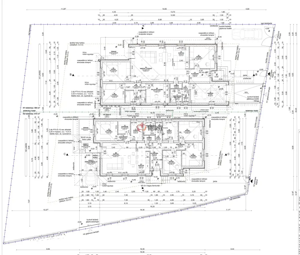
Veresegyház kedvelt részén, családi házas övezetben, 504 nm-es telekre épülő, egyszintes, nettó 118 nm-es, nappali + 4 szobás, dupla komfortos, 16,50 nm-es garázzsal, 15 nm-es terasszal, 3 nm-es külső tárolóval rendelkező családi ház eladó!
A KIVITELEZÉS A MAI KOR IGÉNYEINEK MINDEN TEKINTETBEN MEGFELELŐ, MINŐSÉGI ALAPANYAGOK FELHASZNÁLÁSÁVAL TÖRTÉNIK!
Beruházó referencia munkái a közelben megtekinthetők!
Helyiséglista:
előszoba 5,89 nm
WC 1,20 nm
közlekedő 3,10 nm
közlekedő 1,70 nm
fürdő 5,89 nm
házt.h. 3,87 nm
kamra 1,35 nm
konyha-étkező-nappali 48,18 nm
szoba 13,09 nm
szoba 12,75 nm
szoba 10,80 nm
szoba 10,20 nm
garázs 16,50 nm
terasz 14,85 nm
fedett tároló 3,20 nm
Műszaki leírás röviden:
*teherhordó fal PTH 30-as síkra csiszolt okos tégla
*belső válaszfalak 10 cm PTH
*15 cm-es homlokzati szigetelés
*nyílászárók műanyag 3 rétegű, 5 légkamrás kivitel
*betongerendás födém
*tetőcserép
*fűtése kondenzációs gázkazán, padlófűtéssel (hőszivattyú megbeszélés kérdése)
*3 db klíma előkészítés
*utcafronti kerítés zsalukő erősített fa lécezés
*szaniterek, beltéri ajtók a műszaki leírásban meghatározott értékben választhatók.
Hiteligény esetén az ügyintézést szakszerűen, gyorsan és DÍJMENTESEN biztosítjuk ügyfeleink számára, így a legkedvezőbb megoldást tudjuk kínálni az ingatlan megvásárlásához.
Várom megtisztelő érdeklődését, akár hétvégén is!
belül: kitűnő
gáz: bekötve
villany: bekötve
víz: bekötve
Pest megye, Veresegyház, Ligetek
Hitelkalkulátor

+36 30 924 5445,
turzobettina@gmail.com
KAPCSOLATFELVÉTEL
Ingatlan jellege
családi ház
Belső terület
118 m²
Telek terület
504 m²
Tájolás
dél
Építési állapot
új
Építési mód
tégla
Szobák száma
5 szoba
Terasz
15 m²
Épület szintje
földszintes.
Épült
2025
Ingatlan állapot
kívül: kitűnő
belül: kitűnő
Klíma
előkészítve
Szigetelés
15 cm
Ablak szerkezete
3 rétegű thermoplan
Fűtés
cirko
Komfort
duplakomfort
Parkolás
van önálló garázs
Közműállapot
csatorna: bekötve
gáz: bekötve
villany: bekötve
víz: bekötve
Energetika
A+ 2024: