KAPCSOLATFELVÉTEL
Ingatlan jellege
családi ház
Belső terület
180 m²
Telek terület
794 m²
Tájolás
délnyugat
Építési állapot
új
Építési mód
tégla
Szobák száma
5 szoba
Épület szintje
földszintes.
Épült
kb. 2025
Ingatlan állapot
kívül: új
belül: új
Szigetelés
10 cm
Ablak szerkezete
3 rétegű thermoplan
Fűtés
hőszivattyús
Komfort
duplakomfort
Parkolás
van, nem meghatározott
Közműállapot
csatorna: bekötve
gáz: bekötve
villany: bekötve
víz: bekötve
Energetika
A++ 2024:
Komárom-Esztergom megye, Környe, Bajcsy lakópark
Irányár
(886.67 E Ft/㎡)
Szobák
Terület
Telek terület
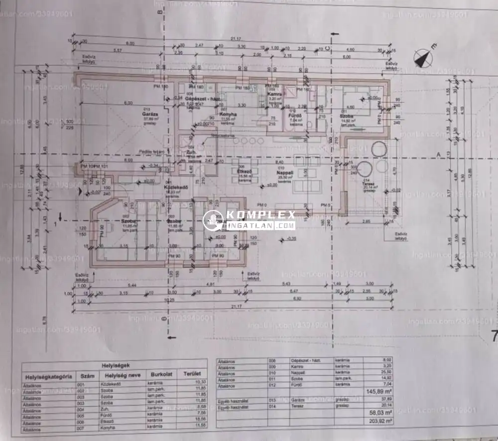
A Komplex Ingatlaniroda megvételre kínálja Környe egyik legújabb, természetközeli lakóparkjában, a Bajcsy lakóparkban található 2023-ban épült, 180 m²-es, modern családi házat, amely egy 794 m²-es sík telken helyezkedik el.
Az igényes, leinformálható kivitelezőtől származó ingatlan tégla építésű, 15 cm homlokzati hőszigeteléssel és 30 cm befúvott padlásszigeteléssel készült.
A ház minden helyiségében minőségi burkolatok kerültek beépítésre.
Főbb jellemzők:
• 4 különálló szoba
• Tágas, amerikai konyhás nappali étkezővel
• 2 fürdőszoba (egyik kádas, másik zuhanyzós)
• Háztartási helyiség, mosókonyha és spejz
• 36 m²-es dupla garázs, elektromos kapuval
• Fedett, udvarra néző terasz
Műszaki tartalom:
• Minőségi, hőszigetelt műanyag nyílászárók, elektromos redőnyökkel
• H-tarifás hőszivattyús padlófűtés
• Mennyezet hűtés
• Energetikai besorolás: A++
• 3 fázisú hálózat – napelem telepítésére előkészítve
• Riasztórendszer előkészítés
• Fénycsatornák a konyhában és fürdőszobában, természetes megvilágítást biztosítva
• Gondozásmentes, antracit színű kerítés
Az ingatlan per- és tehermentes, azonnal birtokba vehető.
Ez a ház ideális választás mindazoknak, akik modern, energiatakarékos és prémium kivitelezésű otthont keresnek nyugodt, zöldövezeti környezetben, mégis a város közelségében.
Vételár 159.600.000.-Ft
Irodánk teljeskörű szakmai tanácsadással, ingyenes hitelügyintézéssel, profi ügyvédi háttérrel rendelkezik.
Keressen bátran megadott elérhetőségem bármelyikén, akár hétvégén is!
belül: új
gáz: bekötve
villany: bekötve
víz: bekötve
Komárom-Esztergom megye, Környe, Bajcsy lakópark
Hitelkalkulátor

+36 70 394 2794
balla.gabriella@komplexingatlan.com
KAPCSOLATFELVÉTEL
Ingatlan jellege
családi ház
Belső terület
180 m²
Telek terület
794 m²
Tájolás
délnyugat
Építési állapot
új
Építési mód
tégla
Szobák száma
5 szoba
Épület szintje
földszintes.
Épült
kb. 2025
Ingatlan állapot
kívül: új
belül: új
Szigetelés
10 cm
Ablak szerkezete
3 rétegű thermoplan
Fűtés
hőszivattyús
Komfort
duplakomfort
Parkolás
van, nem meghatározott
Közműállapot
csatorna: bekötve
gáz: bekötve
villany: bekötve
víz: bekötve
Energetika
A++ 2024: