KAPCSOLATFELVÉTEL
Ingatlan jellege
ikerház
Belső terület
180 m²
Telek terület
400 m²
Tájolás
dél, kelet, nyugat
Építési állapot
újszerű
Építési mód
tégla
Szobák száma
5 szoba
Terasz
35 m²
Épület szintje
2.
Épült
2023
Ingatlan állapot
kívül: újszerű
belül: luxus
Klíma
van
Szigetelés
17 cm
Ablak szerkezete
3 rétegű thermoplan
Fűtés
hőszivattyús
Komfort
duplakomfort
Parkolás
van önálló garázs
Közműállapot
csatorna: bekötve
gáz: telken
villany: bekötve
víz: bekötve
Energetika
nincs megadva
Pest megye, Dunaharaszti, Rákócziliget
Irányár
(1.11 M Ft/㎡)
Szobák
Terület
Telek terület
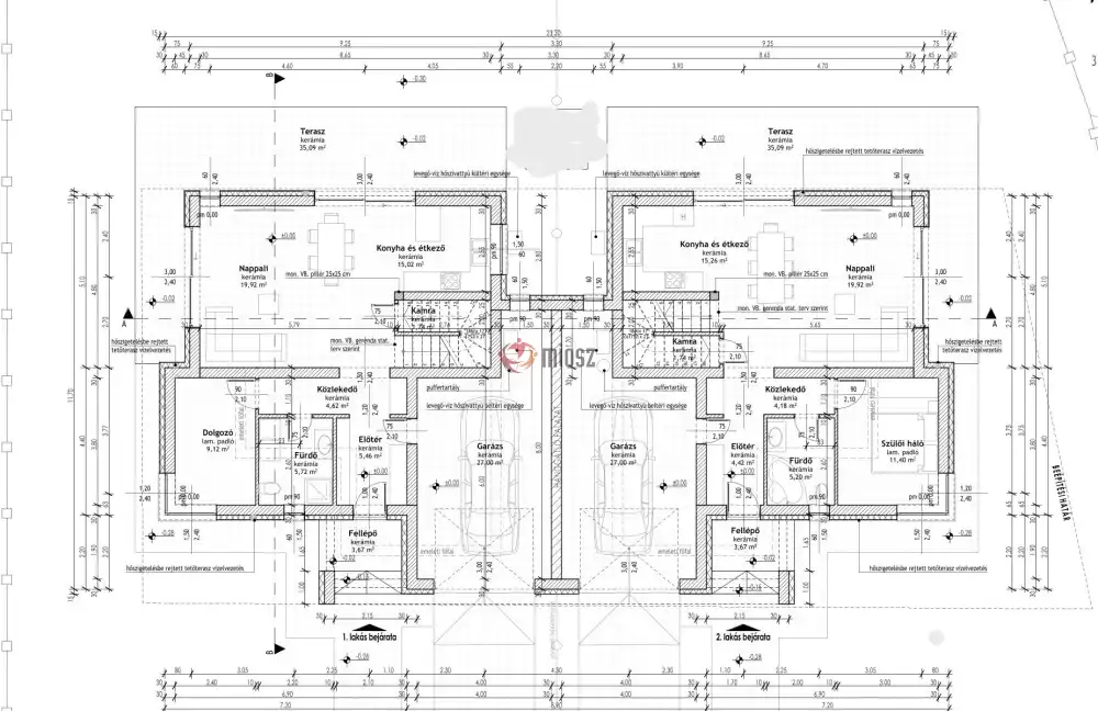
2023-ban épült, 2 szinten 180 nm, tehermentes luxus ingatlan, 400 nm saját, elkerített, privát telekkel eladó.
Tulajdoni formája ikerház, azonban nincs közös lakófal, a tető különálló, csak a garázsok falai érintkeznek egymással, külön mérőórák vannak. A tulajdoni viszonyokat társasházi alapító okirat szabályozza.
Elrendezése földszint: előtér, amerikai konyha-nappali (a beépített konyhabútor a gépekkel az eladás részét képezi), tároló, szoba, fürdőszoba wc-vel, 25 nm terasz, lakás kapcsolatos, egy gépjármű elhelyezésére alkalmas fűtött, 27 nm garázs, a garázs előtt, a kerítésen belül, még 2 gépjárművel kényelmesen parkolhatunk.
Emelet: közlekedő, 3 szoba, fürdőszoba wc-vel, 10 nm terasz.
Műszaki adatokból:
-külső teherhordó fal 30 cm tégla, 17 cm grafit homlokzati szigeteléssel
-belső válaszfalak 10 cm Porotherm tégla
-lábazati hőszigetelés extrudált polisztirol hőszigetelő lemez min. 12,0 cm vastagságban.
-talajon fekvő padló hőszigetelés lépésálló expandált polisztirol hőszigetelő lemez 12 cm vtg-ban
-bádogos szerkezetek festett, színes alumínium, melyek igen magas szinten ötvözött alumíniumból készülnek. A fekvőeresz csatorna és lefolyó rendszer; a vápák és orom szegélyek szintén festett alumínium lemezből készülnek.
-a fűtést a meleg vizet, valamint a mennyezeti hűtést-fűtést, levegő-vízrendszerű hőszivattyús rendszer biztosítja. Alacsony rezsivel számolhat a hőszivattyús rendszernek, és a H tarifájú kedvezményes áram díjszabásának, és a kíváló műszaki tartalomnak köszönhetően.
Az épület 100%-ban padlófűtéssel rendelkezik.
-3 rétegű, 6 légkamrás mindkét oldalon színezett műanyag nyílászárók, elektromos redőnnyel, szúnyoghálóval szereltek.
-pakolható padlástér
-öntöző rendszer, fúrt kút
-2 db elektromos kapu, elektromos garázskapu
Extrákból ízelítő: tűzriasztó, vízlágyító-víztisztító, riasztó és kamera rendszer, 3 rétegű, 14 mm-es tölgyfa parketta, magas minőségű szaniterek, burkolatok, ajtók, a konyhapult és az étkező asztal kvarc kompozit, kandalló, 3 fázis, stb.
Az infrastruktúra nagyon jó, busz, vásárlási lehetőségek a közelben.
Az ingatlan rendkívül igényes, praktikus kialakítású, és hangulatos. Nagyobb családok számára is kitűnő választás, hiszen tágas, világos amerikai-konyhás nappalival, 4 hálószobával és dupla fürdőszobával rendelkezik . Műszakilag és esztétikailag magas színvonal jellemzi.
Hitelezhető, Csok+, és támogatott hitelek is igénybe vehetők rá.
Műszaki dokumentációt tudunk adni.
Irány ár:199.000.000,-Ft
LC8069
belül: luxus
gáz: telken
villany: bekötve
víz: bekötve
Pest megye, Dunaharaszti, Rákócziliget
Hitelkalkulátor

+36 30 229 6926
hajaszsuzsa.leeb@gmail.com
KAPCSOLATFELVÉTEL
Ingatlan jellege
ikerház
Belső terület
180 m²
Telek terület
400 m²
Tájolás
dél, kelet, nyugat
Építési állapot
újszerű
Építési mód
tégla
Szobák száma
5 szoba
Terasz
35 m²
Épület szintje
2.
Épült
2023
Ingatlan állapot
kívül: újszerű
belül: luxus
Klíma
van
Szigetelés
17 cm
Ablak szerkezete
3 rétegű thermoplan
Fűtés
hőszivattyús
Komfort
duplakomfort
Parkolás
van önálló garázs
Közműállapot
csatorna: bekötve
gáz: telken
villany: bekötve
víz: bekötve
Energetika
nincs megadva