KAPCSOLATFELVÉTEL
Ingatlan jellege
ikerház
Belső terület
228 m²
Telek terület
1100 m²
Tájolás
délkelet
Építési állapot
újszerű
Építési mód
tégla
Szobák száma
6 szoba
Erkély
25 m²
Terasz
20 m²
Épület szintje
4.
Épült
1995
Ingatlan állapot
kívül: újszerű
belül: újszerű
Klíma
van
Ablak szerkezete
3 rétegű thermoplan
Fűtés
cirko
Komfort
összkomfort
Parkolás
van önálló garázs
Közműállapot
csatorna: bekötve
gáz: bekötve
villany: bekötve
víz: bekötve
Energetika
nincs megadva
Budapest, II. kerület, Széphalom - II/A
Irányár
(1.1 M Ft/㎡)
Szobák
Terület
Telek terület
2025-ben generális felújításon áteső klimatizált ikerház mindkét fele eladó, nagy méretű kerttel és kiváló alaprajzzal. Az ingatlan igény szerint saját belső medencével is kialakítható.
Az ingatlan Széphalom egyik legcsendesebb mellékutcájában található, nyugodt, zöldövezeti környezetben, ahol elsősorban családi házak és ikerházak állnak. A környék kifejezetten családbarát, a közelben több játszótér, iskola és óvoda is elérhető.
• Tömegközlekedés: buszmegálló 400 méteren belül, a Széll Kálmán tér kb. 30 perc alatt elérhető
villamossal
• Bevásárlási lehetőségek: Tesco 500 m, Lidl és Hűvösvölgy Szolgáltatóház kb. 1500 m
• A környéken kisebb boltok, gyógyszertár, egészségügyi szolgáltatások és sportolási lehetőségek is
megtalálhatók
• A nagy, sík kert ideális játszótérnek, családi programoknak
• Igény esetén 10 méteres medence kialakítható egyik vagy mindkét oldal használatával (az ár nem
tartalmazza).
Főbb adatok:
• Telek: 1100 nm
• Bruttó alapterület: 229 nm / ikerfél + 54 nm opcionális
• Szobák: nappali + 5 hálószoba
• Fürdőszobák: 3 db
• Kert: szeparált nagy sík hátsó kert
• Parkolás: 2 garázs + tárolók az alagsorban
• Külön bejáratok
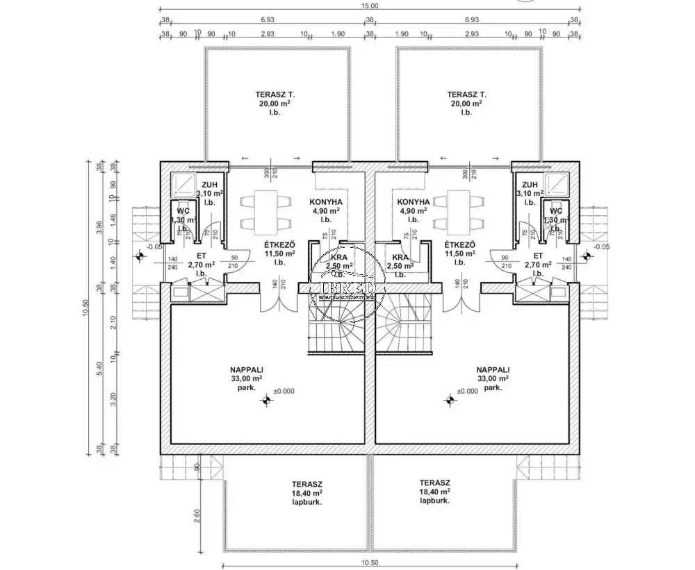
Helyiségek beosztása:
• Alagsor: 2 garázs, tárolók, kazánház, igény szerint 10 méteres beltéri medence
• Földszint: 35 nm nappali + 18 nm terasz, 17 nm konyha + étkező kertkapcsolattal, WC, kamra
• Emelet: 3 hálószoba, fürdőszoba, gardrób
• Tetőtér: opcionális kialakítás 2 nagy szoba, 1 fürdőszoba vagy apartman konyhával, fürdővel,
hobbiszoba / iroda.
Az alagsorban 2 kényelmes garázshely. tárolók, gépészet található. A hátsó részen 54 nm-en helyezkedik el a medence tér, mely tartózhat mindkét, vagy csak egyik lakáshoz, igény szerint.
A földszintre kényelmes lépcső vezet fel. A nappali rész hatalmas ablakokkal az első kertre néz, előtte jól használható négyzet alakú 18 nm-es terasz található. Az étkező konyha rész a hátsó kertre néz, nagy tolóablakon keresztül érhetjük el, mely kinyitja a teret a kert felé. Ezen a szinten egy mellékhelyiség és kamra található még.
Az emeleten 3 kényelmes háló, fürdő és gardrób kerül kialakításra.
A tetőtérben bruttó 60, nettó 40 nm-es helyiség található, ahol kialakítható apartman, gyermek játszó, iroda.
Infrastruktúra
• Tömegközlekedés: buszmegálló 400 méteren belül, a Széll Kálmán tér kb. 30 perc alatt elérhető
villamossal
• Bevásárlási lehetőségek: Tesco 500 m, Lidl és Hűvösvölgy Szolgáltatóház kb. 1500 m
• A környéken kisebb boltok, gyógyszertár, egészségügyi szolgáltatások és sportolási lehetőségek is
megtalálhatók
• A nagy, sík kert ideális játszótérnek, családi programoknak
• Igény esetén 10 méteres medence kialakítható egyik vagy mindkét oldal használatával.
Felújítás részletei:
• Új tetőszerkezet és hőszigetelés -kész
• Nyílászárók teljes cseréje – az ablakok cseréje megtörtént, az ajtók választhatók,
• Új fűtésrendszer, elektromos és vízvezeték hálózat
• Választható szaniterek, burkolatok, belső ajtók
• Levegő-levegő rendszerű hőszivattyús klimatizálás
• A medencetér kialakítást nem tartalmazza az ár
• A felújítás befejezése, beköltözési határidő várhatóan: 3–4 hónap
AZ ÉPÜLET KÜLSŐ A KÉPEN LÁTHATÓ ÁLLAPOTBAN VAN (új tető és szigetelt, színezett homlokzat), A BURKOLATOK ÉS A BELSŐ BERENDEZÉS LÁTVÁNYKÉPEK.
A vételár 250 M Ft / ikerházfél, egyben 500 M Ft.
Műszaki tartalom, további információk és megtekintés ügyében kérem keressen elérhetőségeimen.
belül: újszerű
gáz: bekötve
villany: bekötve
víz: bekötve
Budapest, II. kerület, Széphalom - II/A
Hitelkalkulátor

+36 70 456 1120
benes.attila@ibred.hu
KAPCSOLATFELVÉTEL
Ingatlan jellege
ikerház
Belső terület
228 m²
Telek terület
1100 m²
Tájolás
délkelet
Építési állapot
újszerű
Építési mód
tégla
Szobák száma
6 szoba
Erkély
25 m²
Terasz
20 m²
Épület szintje
4.
Épült
1995
Ingatlan állapot
kívül: újszerű
belül: újszerű
Klíma
van
Ablak szerkezete
3 rétegű thermoplan
Fűtés
cirko
Komfort
összkomfort
Parkolás
van önálló garázs
Közműállapot
csatorna: bekötve
gáz: bekötve
villany: bekötve
víz: bekötve
Energetika
nincs megadva