KAPCSOLATFELVÉTEL
Ingatlan jellege
családi ház
Belső terület
393 m²
Telek terület
1298 m²
Tájolás
délnyugat
Építési állapot
újszerű
Építési mód
tégla
Szobák száma
4+3 félszoba
Épület szintje
2.
Ingatlan állapot
kívül: szerkezetkész
belül: szerkezetkész
Komfort
duplakomfort
Parkolás
van, nem meghatározott
Közműállapot
csatorna: bekötve
gáz: bekötve
villany: bekötve
víz: bekötve
Energetika
nincs megadva
Pest megye, Veresegyház, Ligetek
Irányár
(355.73 E Ft/㎡)
Szobák
Terület
Telek terület
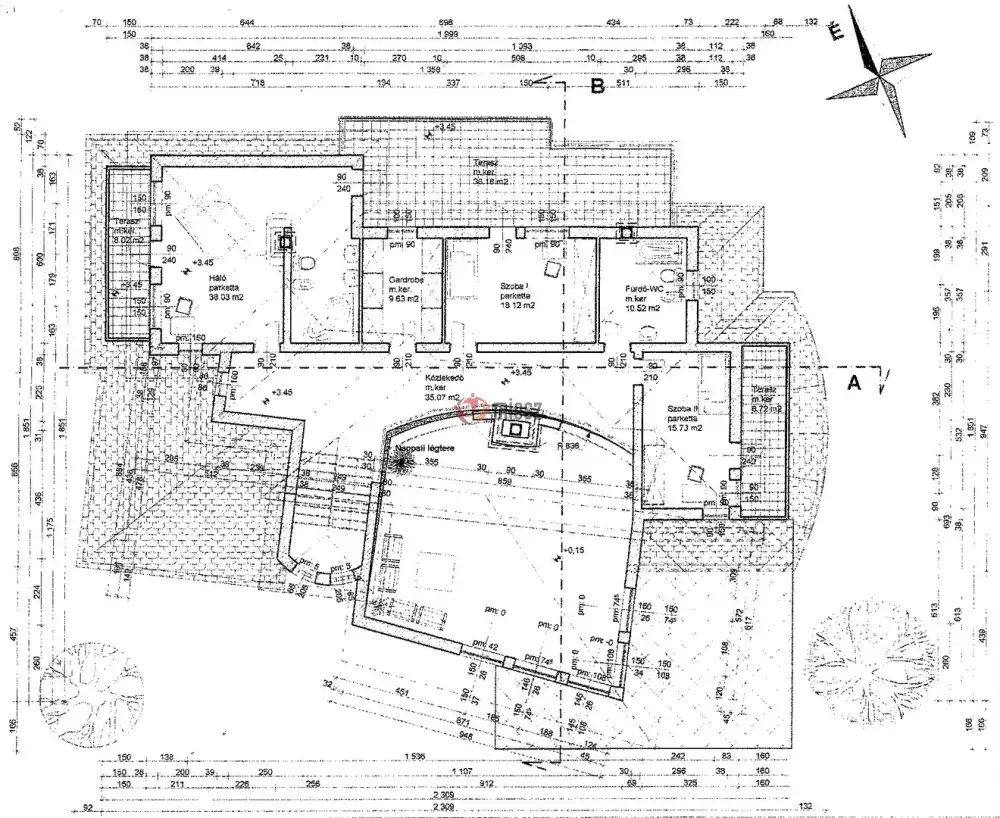
Eladó Veresegyház Ligetek városrészben, gyönyörű környezetben egy bruttó 393 nm-es, kétszintes, egyedi kialakítású, BEFEJEZÉSRE/FELÚJÍTÁSRA váró családi ház, 1298 nm-es, összközműves telekkel.
A jelenlegi készültségi fok 70%.
Elvégzett munkálatok: víz-, villanyvezetékek, padlófűtés rendszer kialakítása.
A burkolatok, beltéri nyílászárók beszerelése, szigetelés, tetőszigetelés, kertrendezés stb. már az új tulajdonosra vár.
A tervek szerint egy nappali, 4 szoba, egy dolgozó és egy hobbi szoba, étkező, kamra, gardrób, 2 fürdőszoba, egy zuhanyzó-Wc, 2 db WC, tároló-kazán, 2 előszoba, közlekedő és egy két férőhelyes garázst alakítottak ki, melyet az új tulajdonosa igény szerint módosíthat.
További információért és a megtekintéssel kapcsolatban várom hívását.
Buszmegálló, bevásárlási lehetőség pár perc alatt elérhető.
Irodánk ÚJ ÉPÍTÉSŰ ingatlanok specialistája, felkészült értékesítőkkel!
Jogi háttérrel (kedvező díjazással) és az egyik legjobb, bank semleges HITELKÖZVETÍTŐVEL segítjük vásárlását.
Új építésű ingatlanjainkat BERUHÁZÓI ÁRON értékesítjük!
Amennyiben értékesíteni kívánja ingatlanát, irodánk egyedi, kedvező ajánlattal áll rendelkezésére!
belül: szerkezetkész
gáz: bekötve
villany: bekötve
víz: bekötve
Pest megye, Veresegyház, Ligetek
Hitelkalkulátor

+36 20 334 3328,
arenaingatlanok@gmail.com
KAPCSOLATFELVÉTEL
Ingatlan jellege
családi ház
Belső terület
393 m²
Telek terület
1298 m²
Tájolás
délnyugat
Építési állapot
újszerű
Építési mód
tégla
Szobák száma
4+3 félszoba
Épület szintje
2.
Ingatlan állapot
kívül: szerkezetkész
belül: szerkezetkész
Komfort
duplakomfort
Parkolás
van, nem meghatározott
Közműállapot
csatorna: bekötve
gáz: bekötve
villany: bekötve
víz: bekötve
Energetika
nincs megadva