Eladó újszerű ház - Jánossomorja

KAPCSOLAT
Takách Tamás


+36 30 200

takach.tamas@

Az időpont kérés naptár ikonja
IDŐPONTOT KÉREK
A visszahívás kérés telefon ikonja egy azt körbe ölelő nyíllal
VISSZAHÍVÁST KÉREK
Ajánlom egy ismerősömnek ikon
AJÁNLOM EGY ISMERŐSÖMNEK
Facebook megosztás ikon
MEGOSZTÁS

KAPCSOLATFELVÉTEL

Küldés

Az üzenetet sikeresen elküldtük!
Hiba történt!
INGATLAN ADATAI

Ingatlan jellege

családi ház

Belső terület

117 m²

Telek terület

687 m²

Tájolás

dél

Építési állapot

újszerű

Építési mód

tégla

Szobák száma

4 szoba

Terasz

23 m²

Épület szintje

1.

Ingatlan állapot

kívül: új
belül: új

Szigetelés

20 cm

Ablak szerkezete

3 rétegű thermoplan

Fűtés

hőszivattyús

Komfort

összkomfort

Parkolás

van fedett felszíni beálló

Közműállapot

csatorna: bekötve
gáz: bekötve
villany: bekötve
víz: bekötve

Energetika

nincs megadva

Az időpont kérés naptár ikonja
HTML
Az időpont kérés naptár ikonja
PDF
Eladó újszerű ház
Ingatlan azonosító:
4067_ko

Győr-Moson-Sopron megye, Jánossomorja

Irányár

115 M Ft
(982.91 E Ft/㎡)

Szobák

4 szoba

Terület

117 m²

Telek terület

687 m²
INGATLAN LEÍRÁSA
Új építésű családi ház Jánossomorján – modern megoldásokkal, nagy telekkel

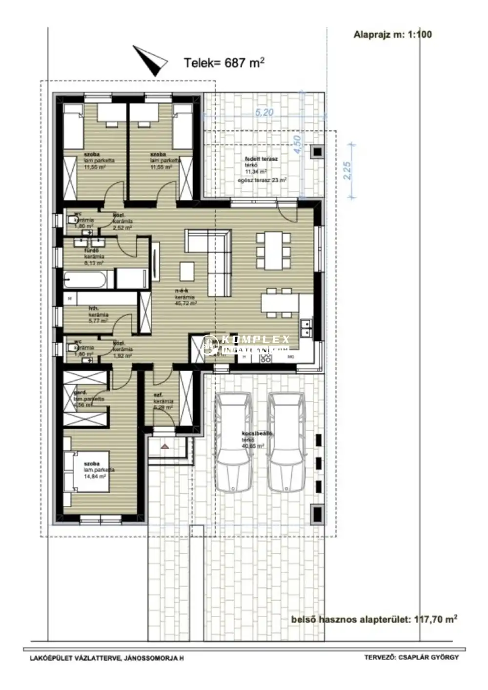
A Komplex Ingatlaniroda megvételre kínál Jánossomorján egy 2024-ben épült, 117 m²-es, modern családi házat, amely egy 687 m²-es telken helyezkedik el. A korszerű műszaki tartalom és az energiahatékony megoldások hosszú távon biztosítják az alacsony fenntartási költségeket és a kényelmes mindennapokat.

Főbb adatok:
• Hasznos alapterület: 117 m²
• Telekméret: 687 m²
• 23 m²-es fedett terasz
• 2 fedett autóbeálló

Elrendezés:
• 3 hálószoba
• Tágas nappali
• Modern kialakítású, amerikai konyhás nappali
• Fürdőszoba + 2 db külön WC

Műszaki felszereltség:
• Hőszivattyús fűtés – padlófűtés
• 20 cm grafitos homlokzati szigetelés
• 30-as csiszolt téglafal
• Lemeztető
• 3 rétegű nyílászárók
• Alumínium redőnyök

Ez a ház ideális választás azok számára, akik modern, energiatakarékos és azonnal költözhető új építésű otthont keresnek nyugodt környezetben, mégis közel az osztrák határhoz és Mosonmagyaróvárhoz.

Ha felkeltette ez a hirdetés az érdeklődését vagy további kérdései vannak, akkor keressen bizalommal.

Irodánk készséggel segít hitel, támogatások díjmentes ügyintézésében is.

Komplex Ingatlaniroda


INGATLAN ADATAI

Ingatlan jellege
családi ház
Belső terület
117 m²
Telek terület
687 m²
Tájolás
dél
Építési állapot
újszerű
Építési mód
tégla
Szobák száma
4 szoba
Terasz
23 m²
Épület szintje
1.
Ingatlan állapot
kívül: új
belül: új
Szigetelés
20 cm
Ablak szerkezete
3 rétegű thermoplan
Fűtés
hőszivattyús
Komfort
összkomfort
Parkolás
van fedett felszíni beálló
Közműállapot
csatorna: bekötve
gáz: bekötve
villany: bekötve
víz: bekötve
Energetika
nincs megadva
TÉRKÉP

Győr-Moson-Sopron megye, Jánossomorja

Hitelkalkulátor


KAPCSOLAT
Takách Tamás
Takách Tamás


+36 30 200 4206

takach.tamas@komplexingatlan.com

KAPCSOLAT
Takách Tamás

+36 30 200

takach.tamas@

Az időpont kérés naptár ikonja
IDŐPONTOT KÉREK
A visszahívás kérés telefon ikonja egy azt körbe ölelő nyíllal
VISSZAHÍVÁST KÉREK
Ajánlom egy ismerősömnek ikon
AJÁNLOM EGY ISMERŐSÖMNEK
Facebook megosztás ikon
MEGOSZTÁS

KAPCSOLATFELVÉTEL

Küldés

Az üzenetet sikeresen elküldtük!
Hiba történt!
INGATLAN ADATAI

Ingatlan jellege

családi ház

Belső terület

117 m²

Telek terület

687 m²

Tájolás

dél

Építési állapot

újszerű

Építési mód

tégla

Szobák száma

4 szoba

Terasz

23 m²

Épület szintje

1.

Ingatlan állapot

kívül: új
belül: új

Szigetelés

20 cm

Ablak szerkezete

3 rétegű thermoplan

Fűtés

hőszivattyús

Komfort

összkomfort

Parkolás

van fedett felszíni beálló

Közműállapot

csatorna: bekötve
gáz: bekötve
villany: bekötve
víz: bekötve

Energetika

nincs megadva

Az időpont kérés naptár ikonja
HTML
Az időpont kérés naptár ikonja
PDF

Hasonló ingatlan hírdetések

Eladó újszerű családi ház, vagy kertes ház hirdetést keres Jánossomorja területén?
Jelenleg nincsenek hasonló aktuális ajánlatok Jánossomorja településen.
Tekintse meg további Győr-Moson-Sopron megyei ajánlatainkat !

eladó új építésű ikerház, Sopron

eladó új építésű ikerház

Győr-Moson-Sopron megye, Sopron, Apácakert
Ajándék a családnak Sopronban, belváros közeli lakóparkban ELADÓ egy 366 nm-es saját kertrésszel rendelkező, átadás előtt álló brutto 130 nm-es, 2 szintes, amerikai konyha- nappali + 4 szobás, igén...
Belső terület
130 m²
Telek terület
366 m²
Szobák
5

120 M Ft

azonnal költözhető
Azonnal költözhető
eladó új építésű családi ház, Levél

eladó új építésű családi ház

Eladó családi ház Levélen! ???? Kiváló közlekedéssel, nyugodt környéken várja új tulajdonosát ez a remek lehetőség! Álmai otthona lehet 80 millió forintért! Áttekinthető, tágas terek és kényelmes elrendezés várja Önt Levél csendes részén, Győr közelében. Ne hagyja ki! ???? #ingatlan #Levél #családiház

Győr-Moson-Sopron megye, Levél, Petőfi Sándor utca
Otthonos családi ház Levél központi részén eladó! Levélen, Győr-Moson-Sopron megyében kínálok megvételre egy jól megközelíthető 92m2(nettó 82m2) fűtéskész családi házat . Az ingatlan kiváló tömegk...
Belső terület
92 m²
Telek terület
300 m²
Szobák
4

80 M Ft

Új építésű!
Új építésű
eladó új építésű családi ház, Levél

eladó új építésű családi ház

Kivételes lehetőség Levélen! ???? Igazi családi fészek kétszintes kialakítással, remek közlekedéssel. A modern, tágas elrendezés minden család álma! ???? Ne szalaszd el, tapasztald meg te is a nyugodt, harmonikus vidéki életérzést. ???????? #EladóHáz #Levél

Győr-Moson-Sopron megye, Levél, Petőfi Sándor utca
Tágas, kétszintes családi ház Levél központi részén Az eladásra kínált 92m2(nettó:82m2) ingatlan Levél településen, Győr-Moson-Sopron megyében található, csendes, harmonikus környezetben. A két szi...
Belső terület
92 m²
Telek terület
200 m²
Szobák
4

90 M Ft

Új építésű!
Új építésű
eladó ikerház, Sopron

eladó ikerház

Győr-Moson-Sopron megye, Sopron, Felsőlőverek
Otthon a természet ölelésében – Sopron, Lővérek tetején ☑️ Most 3%-os Otthon Start Lakáshitellel! Álmai otthona csak egy döntésre van! Elképzelte már, milyen érzés minden reggel friss erdei leveg...
Belső terület
95 m²
Telek terület
600 m²
Szobák
4

149.9 M Ft

Panorámás!
Panorámás
eladó családi ház, Győrzámoly

eladó családi ház

Győr-Moson-Sopron megye, Győrzámoly
Győrzámolyon eladó nappali + 4 szobás családi ház gondozott kerttel Győrzámoly kedvelt, csendes részén kínálunk megvételre egy 2018-ban épült, modern családi házat, amely a praktikus elrendezésével...
Belső terület
100 m²
Telek terület
552 m²
Szobák
4

106.9 M Ft

eladó sorház, Sopron

eladó sorház

Győr-Moson-Sopron megye, Sopron, Uszoda utca
Eladó Sopronban egy modern szinteltolásos, 2019-ben épített 3 szobás, kertkapcsolatos, nettó: 93,21 m2, bruttó:115 m2-es sorházi lakás az Uszoda utcában, városra néző panorámás kilátással, saját gará...
Belső terület
93 m²
Telek terület
30 m²
Szobák
3

84.9 M Ft

Újszerű!
Újszerű
eladó családi ház, Harka

eladó családi ház

Győr-Moson-Sopron megye, Harka
Harka külterületén, mesés környezetben, távol a város nyüzsgésétől, eladó egy 40.270m2-es területre épített bruttó 290m2, nettó:3x80m2-es, 3 szintes, alápincézett, teljesen önellátó ingatlan, amely ...
Belső terület
160 m²
Telek terület
40270 m²
Szobák
4

370 M Ft

azonnal költözhető
Azonnal költözhető
eladó családi ház, Mindszentpuszta

eladó családi ház

Győr-Moson-Sopron megye, Mindszentpuszta
Új Építésű Ingatlanok Egyedülálló Ajánlatként Mindszentpusztán! Örömmel mutatjuk be az ideális otthont az Ön számára. Öt gyönyörű nagy méretű telken, a festői Mindszentpusztán, Győrtől rövid távolság...
Belső terület
120 m²
Telek terület
1774 m²
Szobák
2

95 M Ft

Győr-Moson-Sopron megye - Jánossomorja
Győr-Moson-Sopron megye - Jánossomorja
Győr-Moson-Sopron megye - Jánossomorja
Győr-Moson-Sopron megye - Jánossomorja
Győr-Moson-Sopron megye - Jánossomorja
Győr-Moson-Sopron megye - Jánossomorja
Győr-Moson-Sopron megye - Jánossomorja
Győr-Moson-Sopron megye - Jánossomorja
Győr-Moson-Sopron megye - Jánossomorja
Győr-Moson-Sopron megye - Jánossomorja
Győr-Moson-Sopron megye - Jánossomorja