Eladó újszerű ház - Berkenye

KAPCSOLAT
Korda Gabriella


+36 30 332

kordagabriella.prolux@

Az időpont kérés naptár ikonja
IDŐPONTOT KÉREK
A visszahívás kérés telefon ikonja egy azt körbe ölelő nyíllal
VISSZAHÍVÁST KÉREK
Ajánlom egy ismerősömnek ikon
AJÁNLOM EGY ISMERŐSÖMNEK
Facebook megosztás ikon
MEGOSZTÁS

KAPCSOLATFELVÉTEL

Küldés

Az üzenetet sikeresen elküldtük!
Hiba történt!
INGATLAN ADATAI

Ingatlan jellege

családi ház

Belső terület

114 m²

Telek terület

1651 m²

Tájolás

délnyugat

Építési állapot

újszerű

Építési mód

tégla

Szobák száma

3 szoba

Terasz

28 m²

Épület szintje

1.

Épült

2025

Akadálymentes

igen

Ingatlan állapot

kívül: épülő
belül: épülő

Klíma

előkészítve

Szigetelés

15 cm

Ablak szerkezete

3 rétegű thermoplan

Fűtés

hőszivattyús

Komfort

összkomfort

Közműállapot

csatorna: bekötve
gáz: bekötve
villany: bekötve
víz: bekötve

Energetika

A+:

Az időpont kérés naptár ikonja
HTML
Az időpont kérés naptár ikonja
PDF
Eladó újszerű ház
Ingatlan azonosító:
1877_pl

Nógrád megye, Berkenye

Irányár

121.5 M Ft
(1.07 M Ft/㎡)

Szobák

3 szoba

Terület

114 m²

Telek terület

1651 m²
INGATLAN LEÍRÁSA
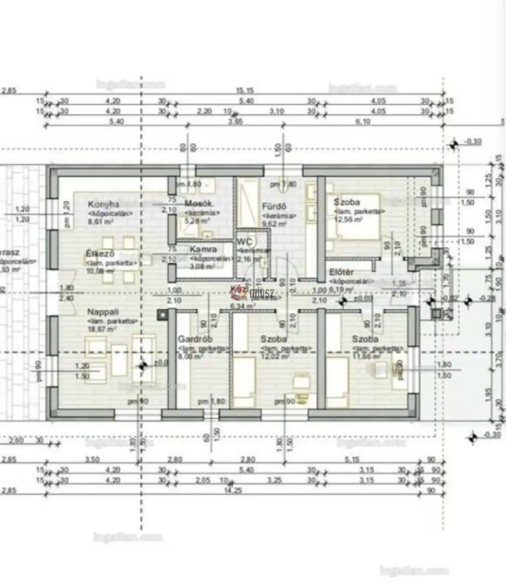
Berkenye, új családi házas utcájában kínálunk megvételre egy, építés alatt álló, jelenleg szerkezet kész, 114 nm-es, 4 szobás, összkomfortos, hőszivattyú által vezérelt padlófűtéses, 28 nm-es terasszal ellátott családi házat, 1651 nm-es telekkel.

Az ingatlan a legújabb szabályoknak megfelelően épült, beton sávalapra, 30-as Porotherm téglából, melyre 15 cm-es grafitos szigetelés kerül, látszó fagerendás födémmel vagy gipszkarton födémmel, melyre 30 cm-es kőzetgyapot szigetelés kerül.
Ablakai korszerű műanyag nyílászárók, 3 üveg réteggel kerülnek beépítésre (fehérek).
A tetőt Terrán betoncserép fedi.

Helyiségei:
- tágas amerikai konyhás nappali, melybe kandalló vagy cserépkályha használatára alkalmas kémény került beépítésre.
- 3 szoba, amik külön nyílnak
- fürdőszoba toalettel
- külön toalett
- gardrób szoba
- háztartási helyiség (mosókonyha lehetőség)

Kialakításra kerültek a szobákban és a nappaliban a H-tarifás klíma kiállások.
Az épület szellőztetését egy hővisszanyerő szellőző rendszer fogja biztosítani.
A napelemes rendszer a ház előnyös délnyugati fekvése miatt, igény szerint kiépíthető.

A házban riasztórendszer kerül kiépítésre.

Az ingatlanban egyedi igények szerint kerülhet kialakításra a belső tér, a burkolatok kiválasztása, a fürdőszobában kád illetve zuhanyfülke legyen kialakítva, a falak és a homlokzat színei.

Az árban az épület csempeburkolata 8 500, Ft/nm értékben, a laminált padló burkolatok 6 500, Ft/nm értékben választhatók.

Ezt az ingatlant egy megbízható, igényes kivitelező építi.
Az érdeklődők a községben, a már megépült referencia családi házát is megnézhetik.

Ha felkeltette érdeklődésüket ez a szép épülő családi ház és meg szeretnék tekinteni, előzetes egyeztetés után megtehetik, akár hétvégén is.
Köszönöm megtisztelő figyelmüket!

Amiben segítjük Önöket:
- hitel ügyintézés
- CSOK ügyintézés
- energetikai tanúsítvány
- földhivatali háttér
- földmérés
- értékbecslés
+ szolgáltatásunk: Ingyenes ajánlatküldés országos rendszerből, e-mail cím megadásával

INGATLAN ADATAI

Ingatlan jellege
családi ház
Belső terület
114 m²
Telek terület
1651 m²
Tájolás
délnyugat
Építési állapot
újszerű
Építési mód
tégla
Szobák száma
3 szoba
Terasz
28 m²
Épület szintje
1.
Épült
2025
Akadálymentes
igen
Ingatlan állapot
kívül: épülő
belül: épülő
Klíma
előkészítve
Szigetelés
15 cm
Ablak szerkezete
3 rétegű thermoplan
Fűtés
hőszivattyús
Komfort
összkomfort
Közműállapot
csatorna: bekötve
gáz: bekötve
villany: bekötve
víz: bekötve
Energetika
A+:
TÉRKÉP

Nógrád megye, Berkenye

Hitelkalkulátor


KAPCSOLAT
Korda Gabriella
Korda Gabriella


+36 30 332 9524

kordagabriella.prolux@gmail.com

KAPCSOLAT
Korda Gabriella

+36 30 332

kordagabriella.prolux@

Az időpont kérés naptár ikonja
IDŐPONTOT KÉREK
A visszahívás kérés telefon ikonja egy azt körbe ölelő nyíllal
VISSZAHÍVÁST KÉREK
Ajánlom egy ismerősömnek ikon
AJÁNLOM EGY ISMERŐSÖMNEK
Facebook megosztás ikon
MEGOSZTÁS

KAPCSOLATFELVÉTEL

Küldés

Az üzenetet sikeresen elküldtük!
Hiba történt!
INGATLAN ADATAI

Ingatlan jellege

családi ház

Belső terület

114 m²

Telek terület

1651 m²

Tájolás

délnyugat

Építési állapot

újszerű

Építési mód

tégla

Szobák száma

3 szoba

Terasz

28 m²

Épület szintje

1.

Épült

2025

Ingatlan állapot

kívül: épülő
belül: épülő

Klíma

előkészítve

Szigetelés

15 cm

Ablak szerkezete

3 rétegű thermoplan

Fűtés

hőszivattyús

Komfort

összkomfort

Közműállapot

csatorna: bekötve
gáz: bekötve
villany: bekötve
víz: bekötve

Energetika

A+:

Az időpont kérés naptár ikonja
HTML
Az időpont kérés naptár ikonja
PDF

Hasonló ingatlan hírdetések

Eladó újszerű családi ház, vagy kertes ház hirdetést keres Berkenye területén?
Jelenleg nincsenek hasonló aktuális ajánlatok Berkenye településen.
Tekintse meg további Nógrád megyei ajánlatainkat !

eladó ikerház, Pásztó

eladó ikerház

Nógrád megye, Pásztó
Pásztó frekventált, mégis nyugodt városrészében kínálunk megvételre tervek alapján megvalósuló, modern ikerházat. Az ingatlan két, egyenként 94,5 m²-es lakóegységből áll, gondosan megtervezett belső e...
Belső terület
94 m²
Telek terület
663 m²
Szobák
3

79.9 M Ft

Új építésű!
Új építésű
eladó új építésű ikerház, Pásztó

eladó új építésű ikerház

Nógrád megye, Pásztó, Sziget utca
Eladásra kínálok Nógrád vármegyében, Pásztón egy igényesen kialakított, új építésű lakóparkban található, amerikai stílusú ikerházat. Az ingatlan 62 m² lakóterületű, 310 m²-es saját telekrésszel rend...
Belső terület
62 m²
Telek terület
310 m²
Szobák
3

56.5 M Ft

eladó új építésű családi ház, Pásztó

eladó új építésű családi ház

Nógrád megye, Pásztó
Eladásra kínálok Nógrád vármegyében, Pásztón egy új építésű, amerikai stílusú családi házat. Az ingatlan 90 m² lakóterülettel és 369 m²-es telken helyezkedik el, modern műszaki tartalommal, átgondo...
Belső terület
90 m²
Telek terület
370 m²
Szobák
4

71.5 M Ft

eladó családi ház, Nézsa

eladó családi ház

Nógrád megye, Nézsa
Toszkán életérzés a Cserhát ölelésében – panorámás családi ház várja új tulajdonosát Nézsán! Eladásra kínálok egy különleges atmoszférájú, újszerű családi házat a csend és nyugalom szigetén, a fest...
Belső terület
94 m²
Telek terület
1274 m²
Szobák
4

99 M Ft

eladó családi ház, Nézsa

eladó családi ház

Nógrád megye, Nézsa
Eladó modern, újszerű családi ház Nézsán – panorámás kilátással, kiváló műszaki tartalommal, nyugodt környezetben! Nézsa egy csendes, dombokkal körbevett, rendezett település Nógrád Vármegye nyugat...
Belső terület
94 m²
Telek terület
1274 m²
Szobák
4

110 M Ft

99 M Ft

CSOK igényelhető
CSOK igényelhető
eladó új építésű családi ház, Nógrád

eladó új építésű családi ház

Nógrád megye, Nógrád
Nógrádban, gyönyörű környezetben eladó egy 2025-ben épült 110 nm-es, 3 szobás új építésű családiház! Nógrád Vármegyében, Nógrádban gyönyörű kertvárosias környezetben, eladó egy új innovatív építés...
Belső terület
110 m²
Telek terület
1100 m²
Szobák
3

89 M Ft

Új építésű!
Új építésű
eladó új építésű ikerház, Pásztó

eladó új építésű ikerház

Nógrád megye, Pásztó, Sziget utca
Eladásra kínálok, kizárólag az Ingatlaniroda portfóliójából, Nógrád Vármegyében Pásztón, egy új építésű, 90 m²-es Amerikai stílusú családi házat, amely egy 369 m²-es telken fekszik. Az ingatlan modern...
Belső terület
90 m²
Telek terület
369 m²
Szobák
3

71.5 M Ft

Új építésű!
Új építésű
eladó új építésű ikerház, Pásztó

eladó új építésű ikerház

Nógrád megye, Pásztó, Sziget utca
Új Építésű Amerikai Stílusú Ikerházak Pásztón! Eladásra kínálok, kizárólag az Ingatlaniroda portfóliójából Nógrád Vármegyében Pásztón, Amerikai stílusú, modern műszaki tartalommal és prémium minősé...
Belső terület
62 m²
Telek terület
310 m²
Szobák
2

56.5 M Ft

Új építésű!
Új építésű
Nógrád megye - Berkenye
Nógrád megye - Berkenye
Nógrád megye - Berkenye
Nógrád megye - Berkenye
Nógrád megye - Berkenye
Nógrád megye - Berkenye
Nógrád megye - Berkenye
Nógrád megye - Berkenye
Nógrád megye - Berkenye
Nógrád megye - Berkenye
Nógrád megye - Berkenye
Nógrád megye - Berkenye